Μεζονέτα νέο, ισόγειο, Κέντρο, Επανομή

€ 185.000
5
145 m²
3
Όχι

Σημείωση

Τελευταία ενημέρωση: 06/11/2025
Περιγραφή

κωδικός: 8-1631


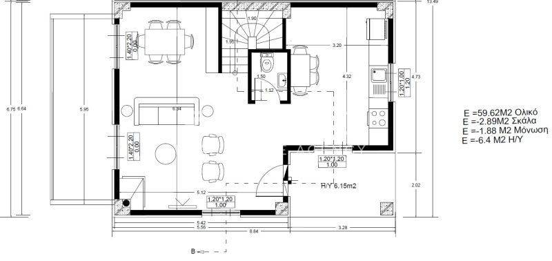
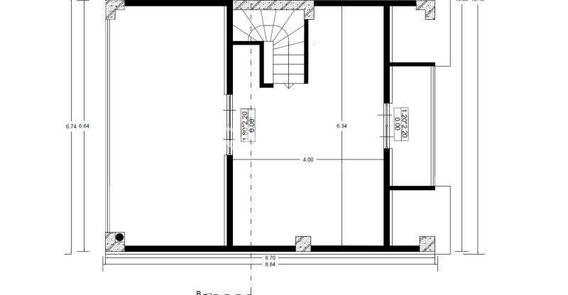
Κωδικός ακινήτου: 8- (Ν)1631. Επανομή - Κέντρο ΠΩΛΕΙΤΑΙ υπό κατασκευή μεζονέτα (αρ: 2-3) 3 επιπέδων (ισόγειο - 1ος όροφος - σοφίτα), συνολικής επιφάνειας 145 τ.μ.. Αποτελείται το ισόγειο (55τ.μ.) από 1 κουζίνα,1 σαλόνι και 1 wc, o 1ος όροφος (60τ.μ.) από 3 υπνοδωμάτια, 1 μπάνιο και σοφίτα (30 τ.μ.) απο 1 υπνοδωμάτιο και 1 wc. Διαθέτει συνθετικά κουφώματα με διπλά τζάμια, πατώματα από πλακάκι, ενδοδαπέδια θέρμανση, πόρτα ασφαλείας, τζάκι, μπαλκόνια (45τ.μ.) 1 θέση στάθμευσης και ιδιωτικό κήπο (100τ.μ.). Βρίσκεται 7 λεπτά με το αυτοκίνητο από την παραλία του Ποταμού και κοντά σε όλα τα απαραίτητα εμπορικά καταστήματα. Απόσταση από θάλασσα 4000 μέτρα, απόσταση από αεροδρόμιο 22000 μέτρα. Αποπεράτωση Ιούνιος του 2026. Τιμή: 185.000€ - Κωδικός Ακινήτου: 8- (Ν)1631. Για άμεση υπόδειξη: 6937418539. Για την υπόδειξη του ακινήτου είναι απαραίτητη η προσκόμιση Αστυνομικής ταυτότητας ή εγγράφου με αναγραφόμενο τον Α.Φ.Μ., σύμφωνα με τον Ν. 4072/11-4-2012 ΦΕΚ 86Α. Τα χαρακτηριστικά των ακινήτων έχουν καταχωρηθεί σύμφωνα με τις πληροφορίες του εντολέα. www.trigonoreal.gr - Trigono Real Estate Agency.
Χαρακτηριστικά
Τύπος
Μεζονέτα
Συμβόλαιο
Πώληση
Όροφος
Ισόγειο
Ανελκυστήρας
Όχι
Εμβαδόν
145 m²
Δωμάτια
5
Υπνοδωμάτια
4
Μπάνια
3
Επιπλωμένο
Όχι
Μπαλκόνι
Όχι
Γκαράζ, χώροι στάθμευσης
1 εξωτερικό
Θέρμανση
Κεντρική, ενδοδαπέδια θέρμανση, τροφοδοσία φυσικό αέριο
Άλλα χαρακτηριστικά
  • Διπλός υαλοπίνακας/ Συνθετικά κουφώματα
  • Προσόψεως
  • Πόρτα ασφαλείας
  • Τζάκι
Πληροφορίες τιμής
Τιμή
€ 185.000
Τιμή ανά m²
1.276 €/m²
Ενεργειακή απόδοση

Κατανάλωση ενέργειας

A+

Ανακαλύψτε κάθε γωνιά του ακινήτου
+22
Πρόσθετες επιλογές

Επικοινώνησε με τον αγγελιοδότη

Ή