Δυάρι Σκλαβενίτης Γραμμές, Κέντρο, Αλεξανδρούπολη

€ 105.000
2
43 m²
1
1
Ναι
Μπαλκόνι
Αποθήκη

Σημείωση

Τελευταία ενημέρωση: 14/11/2025
Περιγραφή

κωδικός: 111717

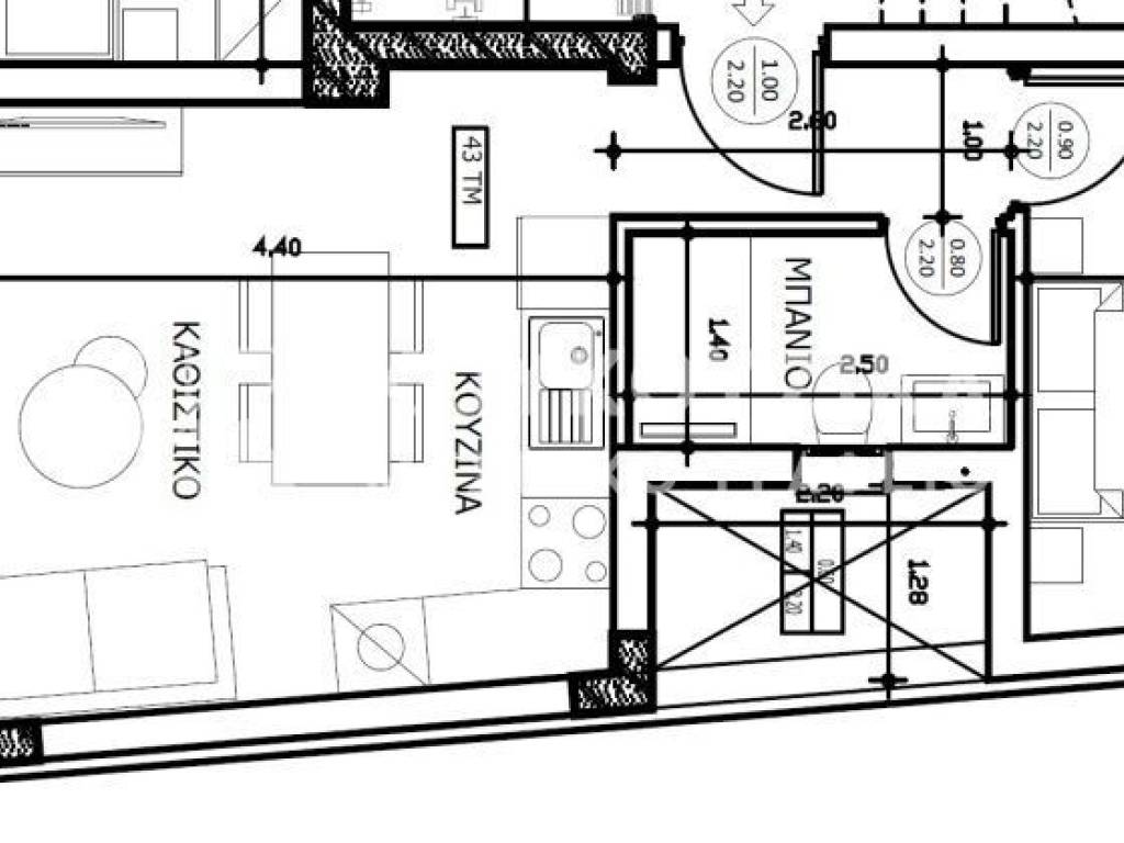
Κωδικός ακινήτου: 111717 - Αλεξανδρούπολη Σκλαβενίτης Γραμμές ΠΩΛΕΙΤΑΙ διαμέρισμα στον 1 ο όροφο συνολικής επιφάνειας 43.00 τ.μ. σε οικόπεδο 400 τ.μ. . Αποτελείται από 1 υπνοδωμάτιο, σαλοκουζίνα, μπάνιο . H κατασκευή ξεκίνησε το 2025 με ενεργειακή κλάση Α και διαθέτει θέρμανση ατομική - φυσικό αέριο, θέα σε θάλασσα, κουφώματα συνθετικά, πατώματα από πλακάκι, πόρτα θωρακισμένη, ανελκυστήρα, πρόσβαση ΑΜΕΑ, αποθήκη 8 τ.μ., A/C, σίτες, διπλά τζάμια, ηλιακό θερμοσίφωνα, boiler, ανοιχτωσιά - Τιμή: 105.000 €
Πωλείται πολυτελές διαμέρισμα άριστης κατασκευής κοντά στο Σκλαβενίτη στις γραμμές. Η οικοδομή θα έχει Νότιο προσανατολισμό, με απεριόριστη ανοιχτωσιά. Η θέρμανση των διαμερισμάτων θα γίνεται με ατομικό λέβητα αερίου και η οικοδομή θα είναι ενεργειακής κλάσης Α. Το διαμέρισμα θα διαθέτει ασανσέρ με πρόσβαση στο υπόγειο, αποθήκη στο υπόγειο 8 τ.μ., δική του θέση πάρκινγκ σκεπαστή, σίτες, ηλιακό, παράθυρο στο μπάνιο και θα είναι διαμπερές. Διαθέσιμο από το Μάρτιο του 2027.

Χαρακτηριστικά
Τύπος
Διαμέρισμα | Πολυτελές ακίνητο
Συμβόλαιο
Πώληση
Όροφος
1 όροφος
Σύνολο ορόφων
5
Ανελκυστήρας
Ναι
Εμβαδόν
43 m²
Δωμάτια
2
Υπνοδωμάτια
1
Μπάνια
1
Επιπλωμένο
Όχι
Μπαλκόνι
Ναι
Γκαράζ, χώροι στάθμευσης
1 σε πάρκινγκ/κλειστό πάρκινγκ, 1 εξωτερικό
Θέρμανση
Αυτόνομη, τροφοδοσία φυσικό αέριο
Κλιματισμός
Αυτόνομη, κρύο/ζέστη
Άλλα χαρακτηριστικά
  • Διπλός υαλοπίνακας/ Συνθετικά κουφώματα
  • Πόρτα ασφαλείας
Πληροφορίες τιμής
Τιμή
€ 105.000
Τιμή ανά m²
2.442 €/m²
Λεπτομέρειες κόστους
Κοινόχρηστα
€ 30/μήνα
Ενεργειακή απόδοση

Κατανάλωση ενέργειας

A

Πρόσθετες επιλογές

Επικοινώνησε με τον αγγελιοδότη

Ή