Τριάρι νέο, ισόγειο, Κέντρο, Θέρμη

€ 175.000
3
66 m²
1
ΙΣ
Ναι
Αποθήκη

Σημείωση

Τελευταία ενημέρωση: 01/12/2025
Περιγραφή

κωδικός: 1-507


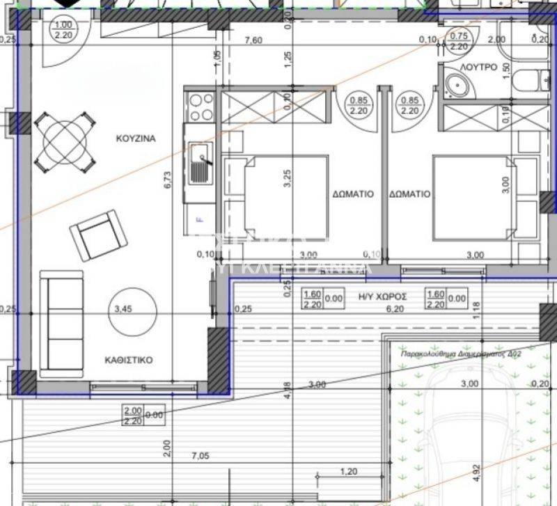
Κωδικός ακινήτου: 1-507 - Θέρμη ΠΩΛΕΙΤΑΙ υπό κατασκευή διαμέρισμα στο ισόγειο πολυτελούς οικοδομής συνολικής επιφάνειας 66 τ.μ. . Αποτελείται από 2 ευρύχωρα υπνοδωμάτια, μια άνετη σαλοκουζίνα που έχουν πρόσβαση σε ιδιωτικό ημιυπαίθριο χώρο για στιγμές χαλάρωσης και ένα μπάνιο . H κατασκευή ξεκίνησε το 2025 με ενεργειακή κλάση Α+ και διαθέτει θέρμανση αυτόνομη - φυσικού αερίου, απεριόριστη θέα, κουφώματα συνθετικά για απόλυτη μόνωση, πατώματα από πλακάκι, πόρτα θωρακισμένη, πρόσβαση ΑΜΕΑ, ιδιωτική αποθήκη , προεγκατάσταση Α/C, προεγκατάσταση συναγερμού, διπλά τζάμια, ανοιχτωσιά και ιδιωτική θέση πάρκινγκ. Το έργο εκτιμάται να ολοκληρωθεί το 2028. - Τιμή: 175.000 € 
Χαρακτηριστικά
Τύπος
Διαμέρισμα | Πολυτελές ακίνητο
Συμβόλαιο
Πώληση | Επενδυτικό
Όροφος
Ισόγειο
Ανελκυστήρας
Ναι
Εμβαδόν
66 m²
Δωμάτια
3
Υπνοδωμάτια
2
Μπάνια
1
Επιπλωμένο
Όχι
Μπαλκόνι
Όχι
Γκαράζ, χώροι στάθμευσης
1 σε πάρκινγκ/κλειστό πάρκινγκ, 1 εξωτερικό
Θέρμανση
Κεντρική, τροφοδοσία φυσικό αέριο
Άλλα χαρακτηριστικά
  • Διπλός υαλοπίνακας/ Συνθετικά κουφώματα
  • Προσόψεως
  • Πόρτα ασφαλείας
Πληροφορίες τιμής
Τιμή
€ 175.000
Τιμή ανά m²
2.652 €/m²
Ενεργειακή απόδοση

Κατανάλωση ενέργειας

A+

Πρόσθετες επιλογές

Επικοινώνησε με τον αγγελιοδότη

Ή