Τεσσάρι νέο, τρίτος όροφος, Κέντρο, Γλυκά Νερά

€ 340.000
4
99 m²
2
3
Ναι
Αποθήκη

Σημείωση

Τελευταία ενημέρωση: 25/02/2026
Περιγραφή

κωδικός: 46061

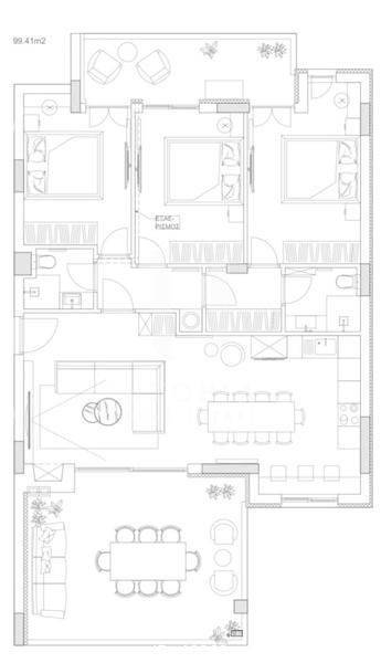
ΓΛΥΚΑ ΝΕΡΑ - Διαμέρισμα 99τμ, 3 υ/δ, 3ος, υπό κατασκευή, κατασκευή 2025, ενεργειακή κλάση Α+, σαλόνι, κουζίνα, 2 μπάνια, αυτόνομη θέρμανση (αντλία θερμότητας), 2 ανοιχτές θέσεις parking, ήσυχο, διαμπερές, φωτεινό, πρόσοψης, αποθήκη 6τμ, ηλιακός, θερμοπρόσοψη, ασανσέρ, κουφώματα ενεργειακά θερμοδιακοπής, διπλά τζάμια, σίτες, τύπος δαπέδων πλακάκι & ξύλο, τριφασικό ρεύμα, πόρτα ασφαλείας, συναγερμός, θυροτηλεόραση, οικιστική ζώνη. Αποπεράτωση αρχές 2027 Τιμή €340.000 (κωδ. 46061) 2160701958; 2160701959 UTOPIA REAL ESTATE | Web: www.utopiarealestate.gr | Email: info@utopiarealestate.gr
Χαρακτηριστικά
Τύπος
Διαμέρισμα
Συμβόλαιο
Πώληση
Όροφος
3 όροφος
Ανελκυστήρας
Ναι
Εμβαδόν
99 m²
Δωμάτια
4
Υπνοδωμάτια
3
Μπάνια
2
Επιπλωμένο
Όχι
Μπαλκόνι
Όχι
Γκαράζ, χώροι στάθμευσης
1 εξωτερικό
Θέρμανση
Κεντρική, αντλία θέρμανσης
Άλλα χαρακτηριστικά
  • Διπλός υαλοπίνακας/ Κουφώματα αλουμινίου
  • Προσόψεως
  • Πόρτα ασφαλείας
  • Συναγερμός
Πληροφορίες τιμής
Τιμή
€ 340.000
Τιμή ανά m²
3.434 €/m²
Λεπτομέρειες κόστους
Κοινόχρηστα
Χωρίς κοινόχρηστα έξοδα
Ενεργειακή απόδοση

Κατανάλωση ενέργειας

A+

Ανακαλύψτε κάθε γωνιά του ακινήτου
+10
Πρόσθετες επιλογές

Επικοινώνησε με τον αγγελιοδότη

Ή