Κατάστημα - Εμπορικός χώρος προς Ενοικίαση

€ 2.700/μήνα
313 m²
3

Σημείωση

Τελευταία ενημέρωση: 14/02/2026
Περιγραφή

κωδικός: 2175710

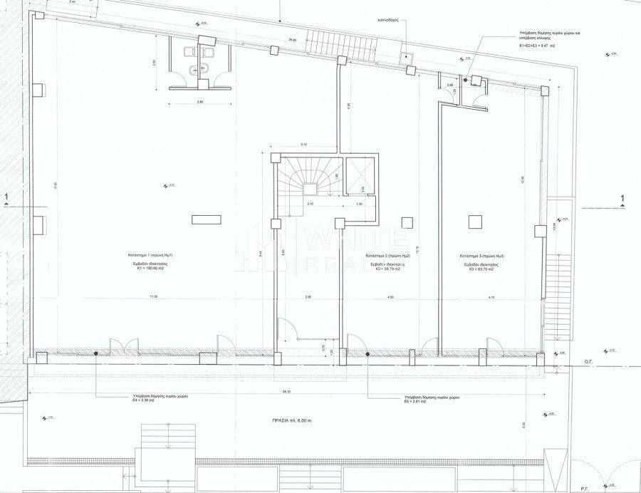
Γαλάτσι - Περιβόλια, Κατάστημα Προς Ενοικίαση, όροφος: Ισόγειο, συνολικής επιφάνειας 313 τ.μ., σε οικόπεδο 935 τ.μ.. Αποτελείται από ισόγειο 313 τ.μ., υπόγειο 309 τ.μ. και η πρόσοψή του είναι 24,1 μ. Έχει κατασκευαστεί το 1980, διαθέτει:, 3 wc, ενώ διαθέτει 2 θέσεις στάθμευσης (2 Σε ανοιχτό χώρο), ενεργειακό πιστοποιητικό: Ζ και τα δάπεδα είναι: Ξύλο, Μωσαικό. Το ακίνητο είναι Γωνιακό, Προσόψεως, Φωτεινό, Διαμπερές. Γαλάτσι, Περιβόλια. Προς ενοικίαση: Τρία (3) συνεχόμενα ισόγεια καταστήματα 190,60 τ.μ., 58,79 τ.μ., 63,70 τ.μ. αντίστοιχα, με δυνατότητα συνένωσης. Συνολικό εμβαδό καταστημάτων 313 τ.μ., συνολική βιτρίνα 24,10 μ., σε οικόπεδο 935 τ.μ. Επίπεδα: 2, Δάπεδα: μωσαϊκό και πατώματα, ενεργειακό πιστ/κο Ζ, έτος κατασκευής 1980. Δυνατότητα παραχώρησης (μέσα στην ίδια τιμή) και υπόγειων αποθηκευτικών χώρων συνολικά 309 τ.μ. Λοιπά χαρακτηριστικά: ένα WC ανά κατάστημα, δύο (2) θέσεις στάθμευσης, διαμπερή, φωτεινά, γωνιακό, ράμπα εκφόρτωσης, εσωτερική σκάλα, τιμή συζητήσιμη.. Τιμή: €2.700 White Realty, Τηλέφωνο Επικοινωνίας: 6971506485, email: info@whiterealty.gr
Χαρακτηριστικά
Συμβόλαιο
Ενοικίαση
Εμβαδόν
313 m²
Δωμάτια
3 μπάνια
Βιτρίνες
24 m γραμμικά
Γκαράζ, χώροι στάθμευσης
2 εξωτερικό
Άλλα χαρακτηριστικά
  • Γωνιακή θέση
  • Προσόψεως
Πληροφορίες τιμής
Τιμή
€ 2.700/μήνα
Τιμή ανά m²
9 €/m²
Λεπτομέρειες κόστους
Εγγύηση
Δεν αναφέρεται
Ενεργειακή απόδοση

Κατανάλωση ενέργειας

Ζ

Ανακαλύψτε κάθε γωνιά του ακινήτου
+15
Πρόσθετες επιλογές

Επικοινώνησε με τον αγγελιοδότη

Ή