Βιοτεχνικός χώρος προς Ενοικίαση

€ 8.300/μήνα
1.840 m²
3+

Σημείωση

Τελευταία ενημέρωση: 25/02/2026
Περιγραφή

κωδικός: 15126

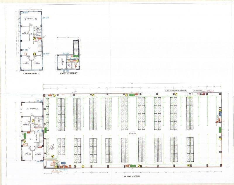
Κωδικός ακινήτου: 15126 - Εχέδωρος Σίνδος ΒΙΠΕΘ ΕΝΟΙΚΙΑΖΕΤΑΙ βιοτεχνικός χώρος ισόγειο συνολικής επιφάνειας 1840.00 τ.μ. σε οικόπεδο 4623 τ.μ. . Αποτελείται από 11 χώρους, 2 κουζίνες, και 4 WC. Είναι κατασκευασμένος το 2000 με ενεργειακή κλάση Ζ και διαθέτει θέρμανση κλιματισμός, θέα σε ανοιχτό ορίζοντα, πάρκινγκ, προαύλιο, ανοιχτωσιά, εσωτερική σκάλα, ράμπα εκφόρτωσης - Τιμή: 8.300 € (Κωδικός γραφείου 231811032-317)
Ενοικιάζεται άριστος βιοτεχνικός χώρος-αποθήκη 1840 τμ στη ΒΙΠΕΘ. Το τμήμα της αποθήκης είναι 1500τμ, εξ ολοκλήρου εξοπλισμένη με ράφια βαρέως τύπου(DEXION) χωρητικότητας 1512 θέσεων ευρωπαλέτας. Το ύψος της αποθήκης είναι 10,60 μέτρα. Επιπροσθέτως, στο εμπρόσθιο τμήμα υπάρχουν γραφειακοί χώροι 340τμ σε 2 επίπεδα, με την ανάλογη υποδομή δικτύου, καμερών και συναγερμού. Η αποθήκη καλύπτεται από springlers για να καλύψει όλο τον χώρο εμπορευμάτων σε περίπτωση ανάγκης πυροπροστασίας / πυρόσβεσης. Κάτω από την εγκατάσταση υπάρχει υπόγεια δεξαμενή νερού, ώστε να τροφοδοτεί την εγκατάσταση σε περίπτωση φωτιάς (στο χώρο έκαναν εξάσκηση οι άνδρες της Πυροσβεστικής Σίνδου παλιότερα). Όλο το ακίνητο βρίσκεται σε οικόπεδο 4623 m2 και είναι ασφαλτοστρωμένο, με δύο στέγαστρα για parking. Επίσης, ο χώρος έχει τις προδιαγραφές για εγκατάσταση εταιρίας που υπόκειται σε SEVESO II. Διαθέσιμο από 10/2026
Η εταιρία REMAX TODAY και όλοι οι συνεργάτες της λειτουργούν βάσει της Ελληνικής νομοθεσίας Ν 4072 / 11-4-2012 ΦΕΚ 86Α περί μεσιτείας. Οι πληροφορίες και τα χαρακτηριστικά των ακινήτων έχουν καταχωρηθεί βάσει στοιχείων και πληροφοριών που προσκόμισε ο ιδιοκτήτης του ακινήτου .Με την υπόδειξη του ακινήτου και κατά την υπογραφή του εντύπου, κρίνεται απαραίτητο να υποδεικνύεται η ταυτότητα καθώς και το ΑΦΜ σας. Για την καλύτερη εξυπηρέτηση σας και για περισσότερες ευκαιρίες νέων ακινήτων της εταιρίας δείτε εδώ: www.remax-today.eu Ι. Πασαλίδη 155 Καλαμαριά, 55133, Θεσσαλονίκη +30 2314 311535 info@remax-today.eu ΒΡΕΙΤΕ ΜΑΣ ΣΤΑ SOCIAL MEDIA: Facebook: https://www.facebook.com/profile.php?id=61568220200586 Instagram: https://www.instagram.com/remaxtoday_kalamaria/ Linkedin: https://www.linkedin.com/company/remaxtoday/about//
Χαρακτηριστικά
Συμβόλαιο
Ενοικίαση
Τύπος
Βιοτεχνικός χώρος
Εμβαδόν
1.840 m²
Δωμάτια
3+ μπάνια
Όροφος
Ισόγειο
Γκαράζ, χώροι στάθμευσης
1 εξωτερικό
Αποβάθρες φόρτωσης
1
Άλλα χαρακτηριστικά
  • Προσόψεως
Πληροφορίες τιμής
Τιμή
€ 8.300/μήνα
Τιμή ανά m²
5 €/m²
Λεπτομέρειες κόστους
Εγγύηση
Δεν αναφέρεται
Ενεργειακή απόδοση

Κατανάλωση ενέργειας

Ζ

Ανακαλύψτε κάθε γωνιά του ακινήτου
+13
Πρόσθετες επιλογές

Επικοινώνησε με τον αγγελιοδότη

Ή