Studio / Γκαρσονιέρα προς πώληση, Κάτω Τούμπα, Τούμπα

€ 120.000
2
38 m²
1
4
Ναι
Μπαλκόνι
Αποθήκη

Σημείωση

Τελευταία ενημέρωση: 06/03/2026
Περιγραφή

κωδικός: 11355

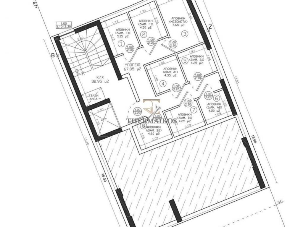
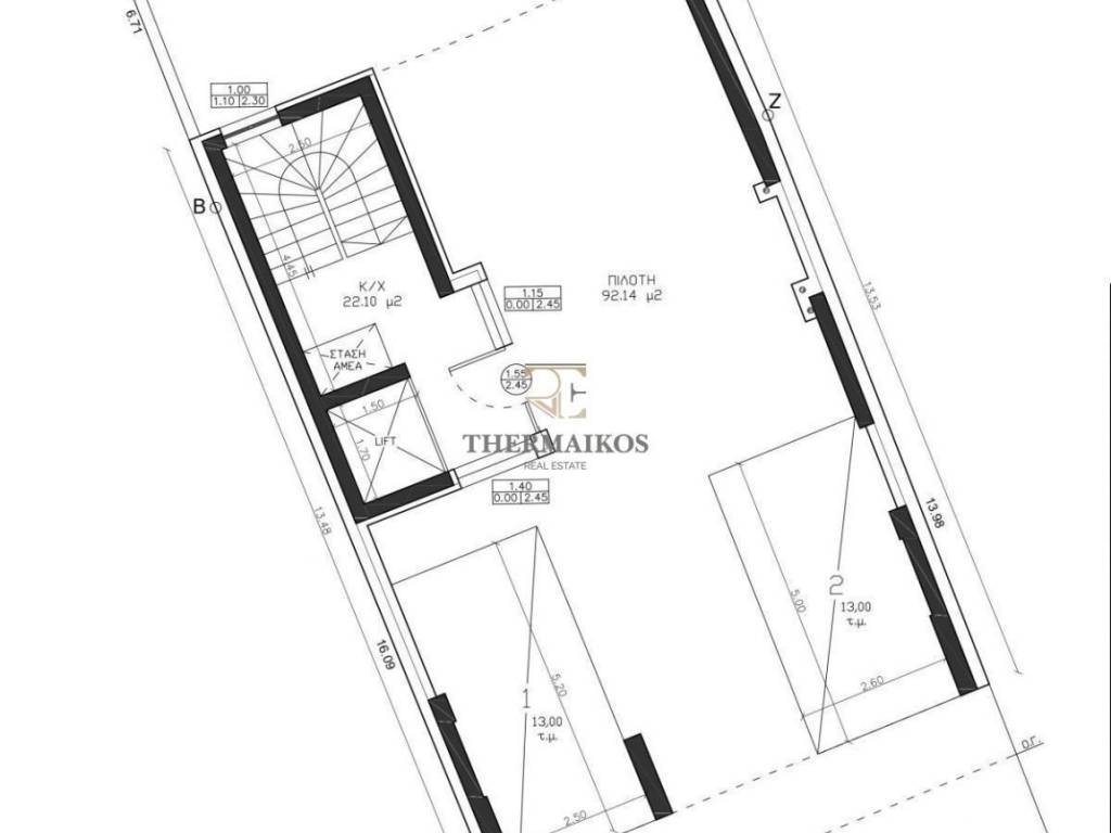
"Τούμπα - Κάτω Τούμπα" Πωλείται νεόδμητο, Studio/Γκαρσονιέρα συνολικού εμβαδού 37,61τ.μ. (29,85τ.μ. καθαρά). -Βρίσκεται στον 4ο όροφο της οικοδομής και διαθέτει ασανσέρ. -Το ακίνητο μια αξιόλογη επιλογή για φοιτητές και εργαζόμενους. -Βλέπει στο πίσω μέρος της οικοδομής σε παρασιά. -Πρόκειται για υπό κατασκευή ακίνητο, καινούργιο project, με σύγχρονα υλικά. -Το έργο ξεκινάει Μάρτιο του 2026 και παράδοση σε 24 μήνες περίπου. Αποτελείται από 1 ενιαίο χώρο σαλοκουζίνα, 1 μπάνιο. -Επιπλέον διαθέτει βεράντα, -αποθήκη υπογείου Στα εσωτερικά του στοιχεία αξίζει να σημειωθούν η πόρτα ασφαλείας η προεγκατάσταση του συναγερμού. -Εγκατάσταση 2 κλιματιστικών. Διαθέτει κουφώματα αλουμινίου με διπλά τζάμια. Τα δάπεδα είναι από πλακάκια. Διαθέτει αυτόνομη θέρμανση και ψύξη με Κλιματισμό, -Smart Home, ένα πλήρως ενσωματωμένο σύστημα με το οποίο μπορείτε να προγραμματίζετε και να ελέγχετε απομακρυσμένα μέσα από το smartphone/tablet/pc σας, όλες τις συσκευές. -Η ενεργειακή του κλάση είναι A+. Βρίσκεται σε απόσταση 1900μ. από τη παραλία. -Βρίσκεται σε ήσυχη γειτονιά. -Απόσταση 450μ. από μεγάλο Πάρκο φιλικό για σκύλους, με μονοπάτια για πεζοπόρους και ποδηλάτες, καθώς και γήπεδο μπάσκετ και εξοπλισμό γυμναστικής. ένα αστικό πάρκο αναψυχής, ιδανικό για περπάτημα ή για τρέξιμο, για πικνικ ή παιχνίδι για όλη την οικογένεια. -Σε απόσταση 2700μ. από το κέντρο της πόλης. -Άμεση πρόσβαση σε κεντρικούς δρόμους, αγορά και περιφερειακό. - ΓΕΝΙΚΑ ΣΤΟΙΧΕΙΑ ΠΕΡΙΟΧΗΣ ΤΗΣ ΤΟΥΜΠΑΣ "Βρίσκεται στο βορειοανατολικό τμήμα του Δήμου και τα όρια της είναι τα εξής: Λ. Καυτανζόγλου - Αγίου Δημητρίου - όρια με Δημοτική Ενότητα Τριανδρίας - Ορτανσίας - βορειοανατολικά όρια Δήμου Θεσ/νίκης (Κεδρηνός λόφος) - όρια με συνοικισμό Μαλακοπής - Λαμπράκη - Αερωπού - ανατολικά όρια Δήμου Θεσσαλονίκης - Αναξιμένους - Κανάρη - Παπαναστασίου - Εγνατία (προέκταση). Xωρίζεται στις εξής περιοχές: Άνω Τούμπα, Κάτω Τούμπα, Κληματαριά, Αγία Βαρβάρα, Αγία Μαρίνα, Παπάφη - Άγιος Φανούριος, Περραιβού, Δόξα, Κρυονέρι. -Η κεντρική πλατεία της περιοχής, είναι η πλατεία Μικρασιατικού και Θρακικού Ελληνισμού που βρίσκεται στην Άνω Τούμπα. Ονομάστηκε έτσι το 2010 από τον Δήμο Θεσσαλονίκης, στη μνήμη των θυμάτων της Γενοκτονίας του Ελληνισμού της Ανατολής αλλά και ως φόρος τιμής στους Μικρασιάτες και Θρακιώτες πρόσφυγες που εγκαταστάθηκαν στη Θεσσαλονίκη μετά τη Μικρασιατική Καταστροφή και την ανταλλαγή των πληθυσμών μεταξύ της Ελλάδας και της Τουρκίας που προέβλεπε η συνθήκη της Λωζάνης. Στον χώρο γύρω από την πλατεία βρίσκεται το γήπεδο της Τούμπας, το οποίο φιλοξενεί τις αθλητικές δραστηριότητες του αθλητικού σωματείου ΠΑΟΚ, το Κέντρο Πολιτισμού του Δήμου, το κολυμβητήριο και η εκκλησία της Αγίας Βαρβάρας. Καθώς και χώρο αναρρίχησης. - ΣΥΓΚΟΙΝΩΝΙΕΣ "Η περιοχή εξυπηρετείται από τις εξής λεωφορειακές γραμμές του Οργανισμού Αστικών Συγκοινωνιών Θεσσαλονίκης: 10 Χαριλάου - Σιδηροδρομικός Σταθμός, 11 Πυλαία - Σιδηροδρομικός Σταθμός, 58 Βενιζέλου - Πανόραμα - Διασταύρωση Χορτιάτη, 12 ΚΤΕΛ - Κάτω Τούμπα, 45 ΚΤΕΛ Μακεδονία - ΚΤΕΛ Χαλκιδικής, 30 Τριανδρία - Αποθήκη, 14 Άνω Τούμπα Με βάση τα χαρακτηριστικά του μπορεί να χαρακτηριστεί ως μια πολύ καλή επενδυτική επιλογή. Τιμή πώλησης: 120,000€. Κωδικός ακινήτου: 9107 Για περισσότερα ακίνητα επισκεφθείτε την ιστοσελίδα μας http://www.thermaikosrealest.gr. Thermaikos Real Estate Κλεάνθους 39, Θεσσαλονίκη, Ελλάδα http://www.thermaikosrealest.gr info@thermaikosrealest.gr Τηλέφωνο: 2310900700 Κινητό: 6907219389, 6956139149 ΥΠΕΥΘΥΝΟΣ ΑΚΙΝΗΤΟΥ: ΣΑΛΒΑΡΗΣ ΓΙΩΡΓΟΣ Προσοχή! Για την υπόδειξη του ακινήτου είναι απαραίτητη η υπόδειξη της αστυνομικής ταυτότητας και του Α.Φ.Μ. σας σύμφωνα με τον Ν.4072/11-4-2012 ΦΕΚ 86 Α.
Χαρακτηριστικά
Τύπος
Studio / Γκαρσονιέρα
Συμβόλαιο
Πώληση | Επενδυτικό
Όροφος
4 όροφος
Ανελκυστήρας
Ναι
Εμβαδόν
38 m²
Δωμάτια
2
Υπνοδωμάτια
1
Μπάνια
1
Επιπλωμένο
Όχι
Μπαλκόνι
Ναι
Θέρμανση
Κεντρική, ρεύμα
Κλιματισμός
Αυτόνομη, κρύο/ζέστη
Άλλα χαρακτηριστικά
  • Προσόψεως
  • Πόρτα ασφαλείας
  • Συναγερμός
Πληροφορίες τιμής
Τιμή
€ 120.000
Τιμή ανά m²
3.158 €/m²
Λεπτομέρειες κόστους
Κοινόχρηστα
Χωρίς κοινόχρηστα έξοδα
Ενεργειακή απόδοση

Κατανάλωση ενέργειας

A+

Ανακαλύψτε κάθε γωνιά του ακινήτου
+10
Πρόσθετες επιλογές

Επικοινώνησε με τον αγγελιοδότη

Ή