Studio / Γκαρσονιέρα προς πώληση, Κάτω Τούμπα, Τούμπα

€ 120.000
1
36 m²
1
4
Όχι
Μπαλκόνι
Αποθήκη

Σημείωση

Τελευταία ενημέρωση: 17/04/2026
Περιγραφή

κωδικός: 1015-581

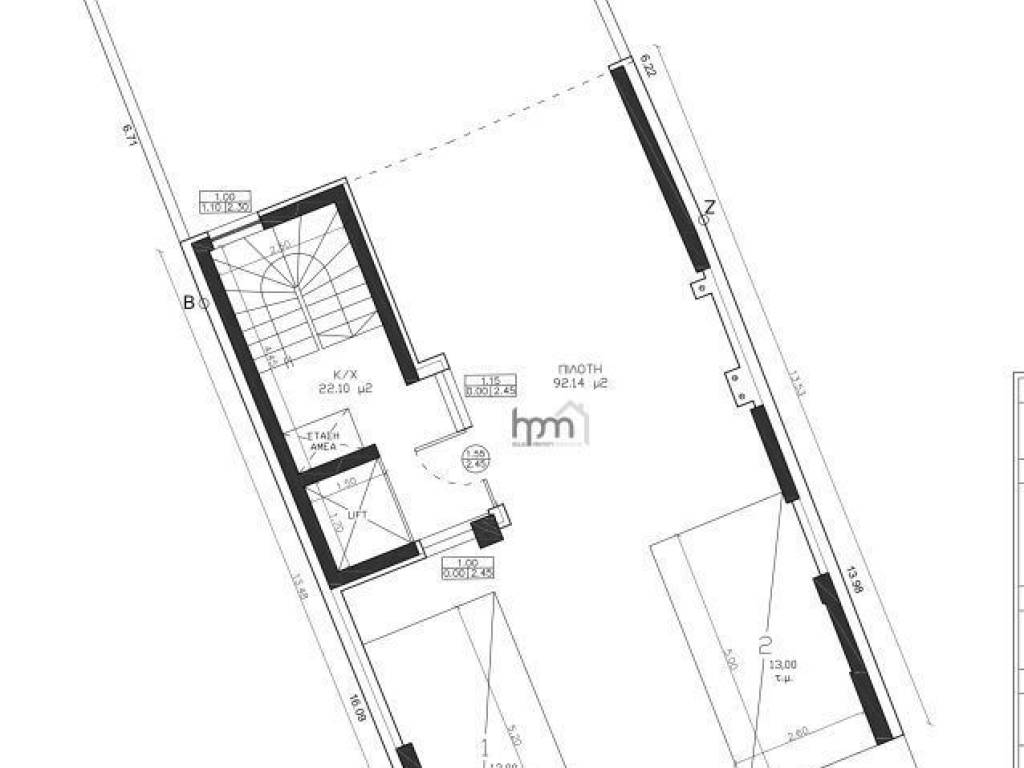
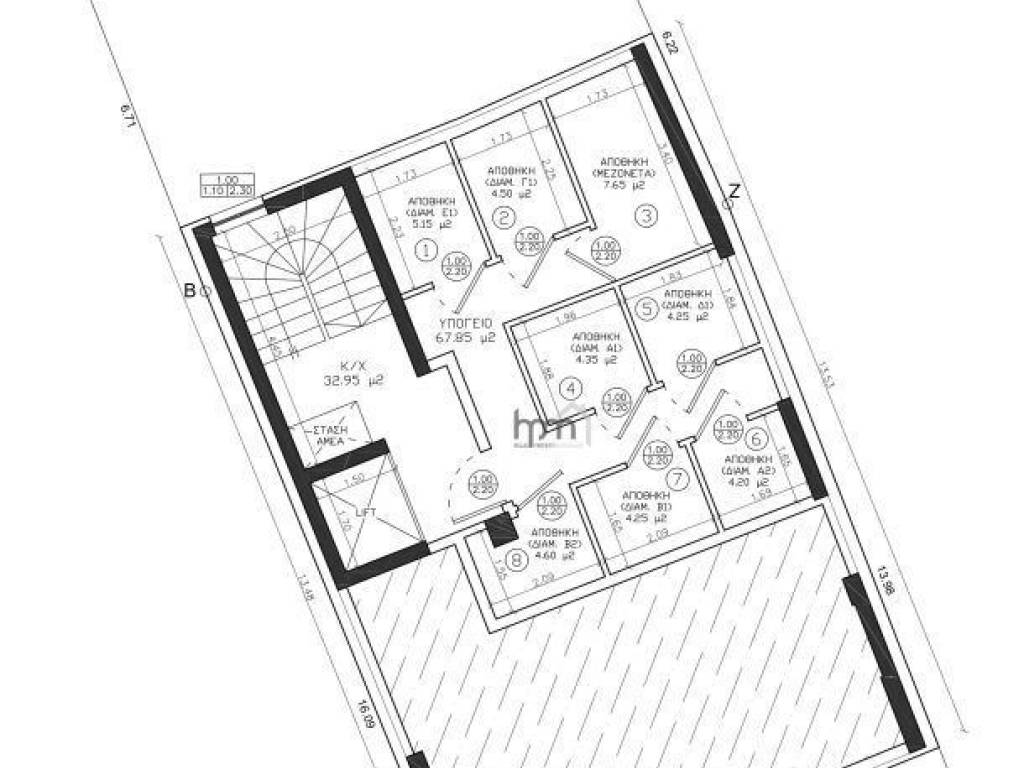
Κωδικός ακινήτου: 1015-581 Δ2 δεξιά Στην περιοχής της Κάτω Τούμπας πωλείται εξαιρετικό εμπρόσθιο στούντιο 4ου ορόφου 35,45τμ μικτά, 28,10τμ καθαρά, σε νεόδμητη υπέρλουξ οικοδομή σε ήσυχη γειτονιά. Αποτελείται από έναν χώρο σαλοκουζίνας, υπνοδωμάτιο με διαχωριστικό, λουτρό, μία αποθήκη αποκλειστικής χρήσης 9,80Τμ στο υπόγειο της πολυκατοικίας και μία συγκεκριμένη θέση στάθμευσης πυλωτής 13,25τμ.. Πρόκειται για ένα ακίνητο που θα ολοκληρωθεί με όλα τα σύγχρονα και με εξαιρετικής και επώνυμης ποιότητας υλικά, σχεδιασμένο από έμπειρους αρχιτέκτονες, μηχανικούς και διακοσμητές, παρέχοντας υψηλή αντισεισμική θωράκιση και αναβαθμισμένη ενεργειακή κλάση Α+. Θα υπάρχει εξωτερική θερμοηχομόνωση κτιρίου με τοποθέτηση μονωτικών πλακών εξωτερικά, σύμφωνα με τον Κανονισμό Ενεργειακής Απόδοσης Κτιρίων (ΚΕΝΑΚ), χρήση ειδικής θερμομονωτικής μεμβράνης, ατομική ενδοδαπέδια θέρμανση με αντλία θερμότητας, θερμομονωτικά κουφώματα από αλουμίνιο με διπλούς ενεργειακούς θερμομονωτικούς υαλοπίνακες, ηλεκτρικά στόρια, σίτες, θωρακισμένη πόρτα, τοποθέτηση κουζίνας, γρανιτοπλακάκια δαπέδων και λουτρού διαφόρων διαστάσεων και χρωμάτων, εντοιχισμένα καζανάκια, έπιπλο μπάνιου, προεγκατάσταση συστήματος συναγερμού, κάμερες ασφαλείας, δορυφορική κεραία, ηλιακό θερμοσίφωνα, οπτικές ίνες, δύο κλιματιστικά ψύξη-θέρμανση, υδραυλικός ανελκυστήρας με διαδρομή από το υπόγειο έως και τον τελευταίο όροφο του κτιρίου. Κοντά σε στάσεις λεωφορείων, σχολεία, πάρκα, χώρους άθλησης, σούπερ μάρκετ, και στην τοπική αγορά της Τούμπας. Χρόνος παράδοσης 4/2027 Τιμή πώλησης 120.000€ Πληροφορίες: Αθηνά Ιωαννίδου 6944434304 Οι πληροφορίες και τα χαρακτηριστικά των ακινήτων έχουν καταχωρηθεί βάσει των πληροφοριών και στοιχείων που προσκόμισε ο εντολέας. Το σημείο στο χάρτη δεν ανταποκρίνεται στην πραγματική διεύθυνση του ακινήτου. Κατά την υπόδειξη του ακινήτου είναι απαραίτητη η αστυνομική ταυτότητα ή ο Α.Φ.Μ., σύμφωνα με το Ν.4072/2012-ΦΕΚ 86/Α/11-4-2012
Χαρακτηριστικά
Τύπος
Studio / Γκαρσονιέρα | Πολυτελές ακίνητο
Συμβόλαιο
Πώληση | Επενδυτικό
Όροφος
4 όροφος
Ανελκυστήρας
Όχι
Εμβαδόν
36 m²
Δωμάτια
1
Υπνοδωμάτια
1
Μπάνια
1
Επιπλωμένο
Όχι
Μπαλκόνι
Ναι
Θέρμανση
Κεντρική, ενδοδαπέδια θέρμανση
Κλιματισμός
Αυτόνομη, κρύο/ζέστη
Άλλα χαρακτηριστικά
  • Διπλός υαλοπίνακας/ Κουφώματα αλουμινίου
  • Πόρτα ασφαλείας
  • Συναγερμός
Πληροφορίες τιμής
Τιμή
€ 120.000
Τιμή ανά m²
3.333 €/m²
Λεπτομέρειες κόστους
Κοινόχρηστα
Χωρίς κοινόχρηστα έξοδα
Ενεργειακή απόδοση

Κατανάλωση ενέργειας

A+

Ανακαλύψτε κάθε γωνιά του ακινήτου
+7
Πρόσθετες επιλογές

Επικοινώνησε με τον αγγελιοδότη

Ή