Γραφείο προς Ενοικίαση

€ 5.000/μήνα
477 m²

Σημείωση

Τελευταία ενημέρωση: 14/04/2026
Περιγραφή

κωδικός: 2338910

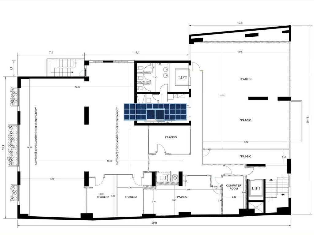
GR Σε σύγχρονο αυτοτελές κτίριο γραφείων κατασκευής 2000 πλησίον του Κέντρου Πολιτισμού Ιδρύματος Σταύρος Νιάρχος και του άξονα της Λ. Συγγρού, διατίθεται άμεσα προς μίσθωση ο 3ος όροφος γραφείων επιφάνειας 477,13 τμ. Ενεργειακή κλάση: Γ, πρώην χρήστης πολυεθνική. Το κτίριο είναι προσβάσιμο από Μαζικά Μέσα Μεταφοράς. Προδιαγραφές: ανοικτή διάταξη (open plan), δύο ανελκυστήρες και δύο κλιμακοστάσια, αυτόνομος κλιματισμός VRV (ψύξη/θέρμανση/εξαερισμός) με ζώνες ανά όροφο (παραδίδεται συντηρημένος σε κατάσταση λειτουργίας), ψευδοροφές, βινυλικά δάπεδα, φωτιστικά, πυρανίχνευση, sprinklers στους γραφειακούς χώρους, υποδομή για UPS, computer room, γεννήτρια για υποστήριξη λειτουργίας κεντρικού ανελκυστήρα κτιρίου, υγροί χώροι (κουζίνα & 4 WCs), διπλά τζάμια. Ο χρήστης τοποθετεί δομημένη καλωδίωση με δικό του κόστος. Μέση τάση, πολύ χαμηλά κοινόχρηστα (~ 0,5 ευρώ/τμ/μήνα). Ζητούμενο μίσθωμα: 5.000 ευρώ/μήνα συμπεριλαμβανομένων δύο (2) θέσεων στάθμευσης, δυνατότητα για μίσθωση δύο επιπλέον θέσεων. Δύο εταιρείες τεχνολογίας λειτουργούν από το εν λόγω κτίριο. EN On a modern self-contained office building constructed at 2000 (energy class: C), the whole 3rd floor comprising of 477.13 sqm is immediately available for lease at € 5,000 /month including two (2) parking slots (potential for leasing additional two slots). Former tenant was a multinational company, while two tech companies are currently among the tenants. The building is located close to Stavros Niarchos Foundation Cultural Center & Syngrou axis, while it is accessible by several means of transportation, such as bus lines. Specs: open plan, two elevators and two staircases, autonomous VRV cooling/heating/ventilation system with zones per floor (delivered maintained in working condition), suspended ceilings, vinyl floors, lighting, fire detection, sprinklers in the office areas, infrastructure for UPS, computer room, generator to support the operation of the building's central elevator, wet areas (kitchen & 4 WCs), double glazing. Occupier to install structured cabling at its own cost. Medium voltage, very low utilities (~ 0.5 euros/sqm/month). Energy class: C.
Χαρακτηριστικά
Συμβόλαιο
Ενοικίαση
Τύπος
Γραφείο
Εμβαδόν
477 m²
Πληροφορίες τιμής
Τιμή
€ 5.000/μήνα
Τιμή ανά m²
10 €/m²
Λεπτομέρειες κόστους
Εγγύηση
Δεν αναφέρεται
Ενεργειακή απόδοση

Κατανάλωση ενέργειας

Γ

Ανακαλύψτε κάθε γωνιά του ακινήτου
+9
Πρόσθετες επιλογές

Επικοινώνησε με τον αγγελιοδότη

Ή