Τριάρι Ιωάννη Πασαλίδη 135-141, 551 33, Καλαμαριά, Κέντρο, Καλαμαριά

€ 285.000
3
78 m²
1
2
Ναι
Αποθήκη

Σημείωση

Τελευταία ενημέρωση: 16/04/2026
Περιγραφή

κωδικός: 21477

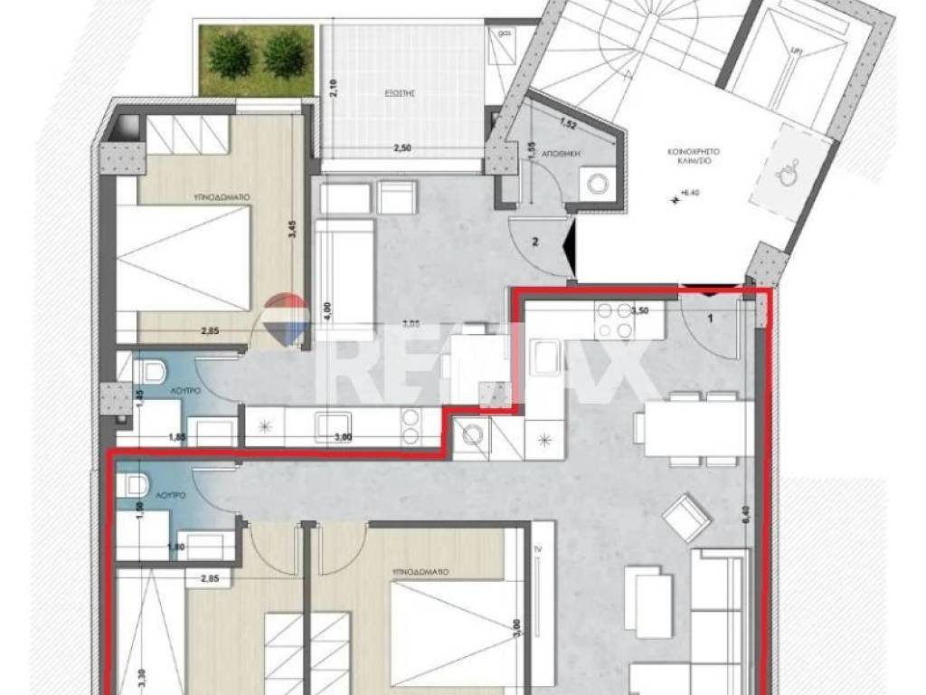
Κωδικός ακινήτου: 21477 - Καλαμαριά Άγιος Παντελεήμων ΠΩΛΕΙΤΑΙ διαμέρισμα στον 2 ο όροφο συνολικής επιφάνειας 78.00 τ.μ. . Αποτελείται από 2 υπνοδωμάτια, σαλοκουζίνα, μπάνιο . Είναι κατασκευασμένο το 2026 με ενεργειακή κλάση Α+ και διαθέτει θέρμανση αυτόνομη - φυσικού αερίου, θέα σε ανοιχτό ορίζοντα, κουφώματα συνθετικά, πατώματα από πλακάκι, πόρτα θωρακισμένη, ανελκυστήρα, πάρκινγκ, αποθήκη , προεγκατάσταση Α/C, προεγκατάσταση συναγερμού, διπλά τζάμια, ανοιχτωσιά - Τιμή: 285.000 € (Κωδικός γραφείου 231811005-465)
Η κατοικία περιλαμβάνει δύο (2) υπνοδωμάτια, σαλοτραπεζαρία, κουζίνα, επίσης η κάθε κατοικία έχει μεγάλο μπάνιο.
Όλα τα διαμερίσματα έχουν θέση στάθμευσης στο ισόγειο και από μία αποθήκη στο υπόγειο του ακινήτου.
Ιδιαίτερο χαρακτηριστικό του ακινήτου πέρα από την ξεχωριστή αρχιτεκτονική του είναι η κατασκευή του, η οποία εξασφαλίζει απόλυτα την ενεργειακή εξοικονόμηση της κάθε κατοικίας.
Ποιοτικά χαρακτηριστικά κατοικιών :
• ενεργειακά κουφώματα αλουμινίου ALUMIL,
• κέλυφος θερμοπρόσοψης BAUMIT,
• smart house SCYPLATFORM της INSPINIA,
• ατομικός λέβητας αεριού WOLF (συμπύκνωσης)
• ενδοδαπέδια θέρμανση,
• προεγκατάσταση κλιματισμού,
• σύστημα μηχανικού εξαερισμού με ανάκτηση θερμότητας,
• πλήρης σύστημα συναγερμού,
• εγκατάσταση δικτύου οπτικών ινών, δορυφορικής κεραίας,
• ηλεκτρολογική παροχή στον χώρο στάθμευσης για ηλεκτρικό αυτοκίνητο,
• ιταλική κουζίνα από επώνυμο οίκο,
• εξώπορτα ασφαλείας,
• υβριδικός ανελκυστήρας,
• εγκατάσταση κοινόχρηστου φωτοβολταϊκού συστήματος που σημαίνει μηδενική ενεργειακή κατανάλωση στις κοινόχρηστες παροχές.
Η εταιρία REMAX TODAY και όλοι οι συνεργάτες της λειτουργούν βάσει της Ελληνικής νομοθεσίας Ν 4072 / 11-4-2012 ΦΕΚ 86Α περί μεσιτείας. Οι πληροφορίες και τα χαρακτηριστικά των ακινήτων έχουν καταχωρηθεί βάσει στοιχείων και πληροφοριών που προσκόμισε ο ιδιοκτήτης του ακινήτου .Με την υπόδειξη του ακινήτου και κατά την υπογραφή του εντύπου, κρίνεται απαραίτητο να υποδεικνύεται η ταυτότητα καθώς και το ΑΦΜ σας. Για την καλύτερη εξυπηρέτηση σας και για περισσότερες ευκαιρίες νέων ακινήτων της εταιρίας δείτε εδώ: www.remax-today.eu Ι. Πασαλίδη 155 Καλαμαριά, 55133, Θεσσαλονίκη +30 2314 311535 info@remax-today.eu ΒΡΕΙΤΕ ΜΑΣ ΣΤΑ SOCIAL MEDIA: Facebook: https://www.facebook.com/profile.php?id=61568220200586 Instagram: https://www.instagram.com/remaxtoday_kalamaria/ Linkedin: https://www.linkedin.com/company/remaxtoday/about//
Χαρακτηριστικά
Τύπος
Διαμέρισμα
Συμβόλαιο
Πώληση
Όροφος
2 όροφος
Ανελκυστήρας
Ναι
Εμβαδόν
78 m²
Δωμάτια
3
Υπνοδωμάτια
2
Μπάνια
1
Επιπλωμένο
Όχι
Μπαλκόνι
Όχι
Γκαράζ, χώροι στάθμευσης
1 εξωτερικό
Θέρμανση
Κεντρική, τροφοδοσία φυσικό αέριο
Άλλα χαρακτηριστικά
  • Διπλός υαλοπίνακας/ Συνθετικά κουφώματα
  • Προσόψεως
  • Πόρτα ασφαλείας
Πληροφορίες τιμής
Τιμή
€ 285.000
Τιμή ανά m²
3.654 €/m²
Ενεργειακή απόδοση

Κατανάλωση ενέργειας

A+

Ανακαλύψτε κάθε γωνιά του ακινήτου
+2
Πρόσθετες επιλογές

Επικοινώνησε με τον αγγελιοδότη

Ή