Τεσσάρι νέο, δεύτερος όροφος, Κέντρο, Χανιά

€ 480.000
4
105 m²
2
2
Ναι
Μπαλκόνι
Αποθήκη

Σημείωση

Τελευταία ενημέρωση: 20/04/2026
Περιγραφή

κωδικός: AK 4209

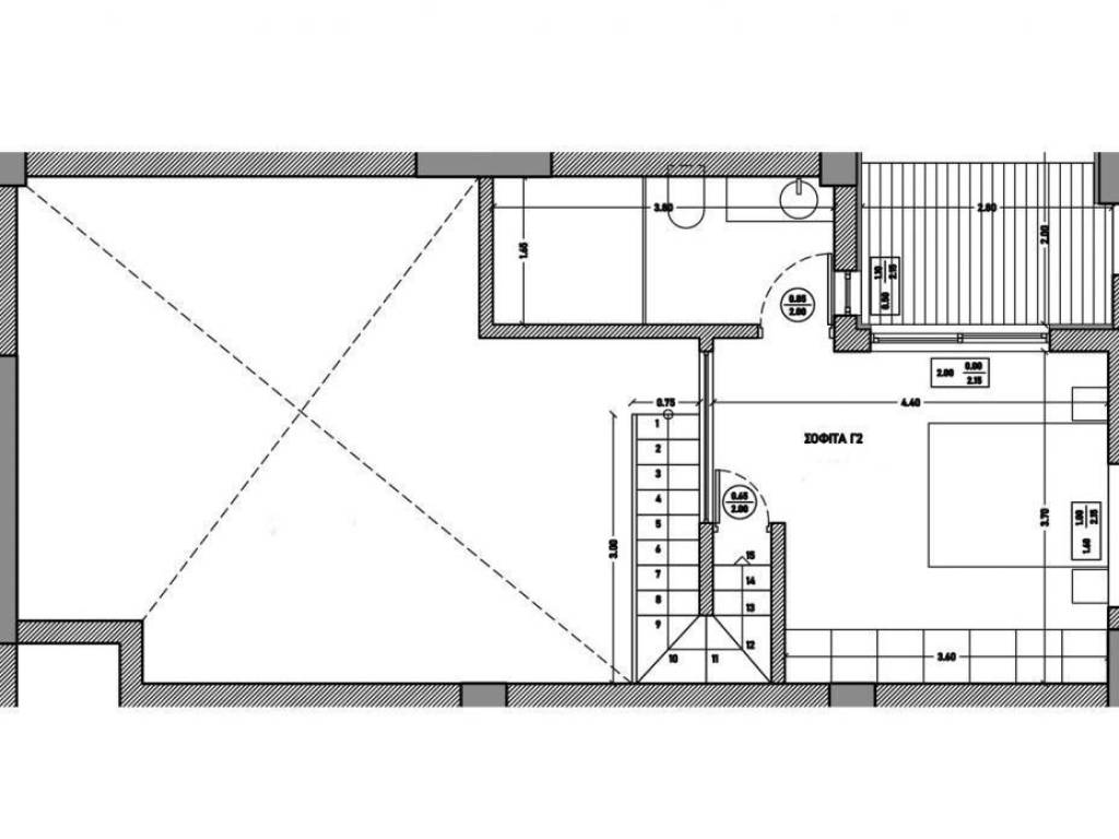
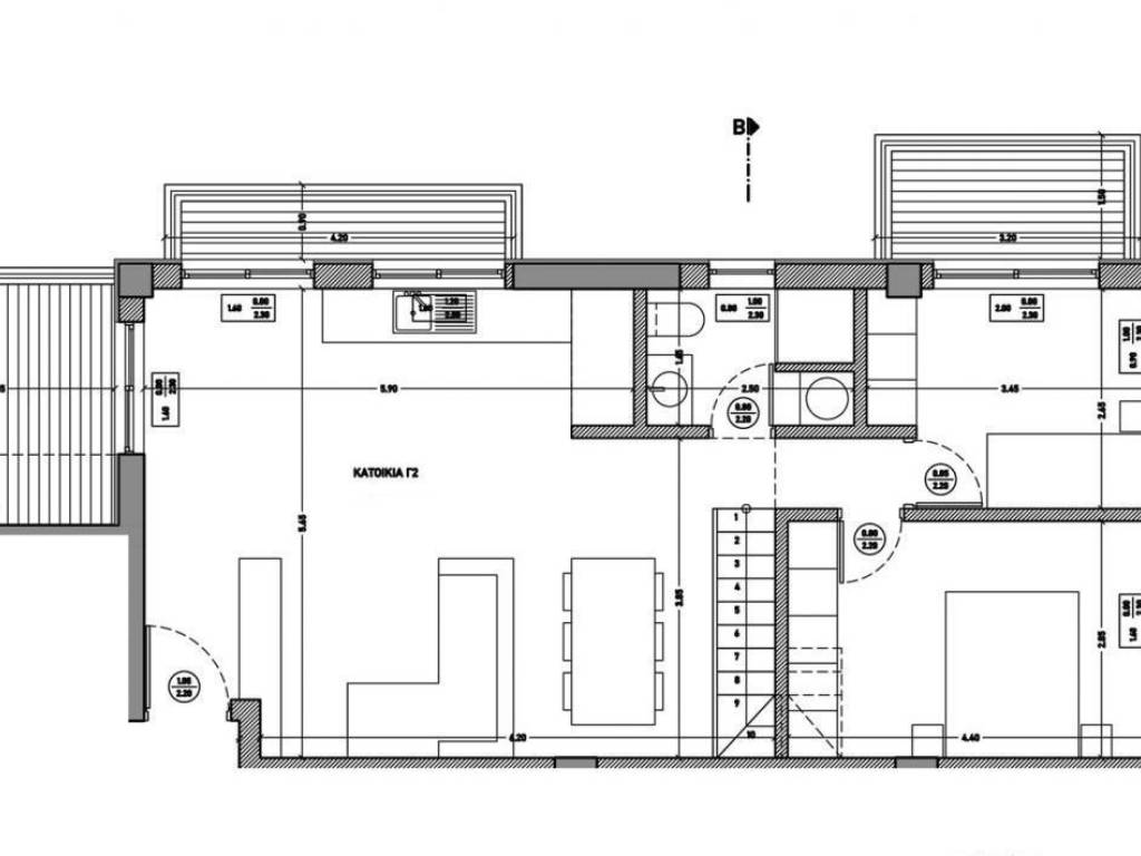
Πωλείται υπό κατασκευή πολυτελές μεζονέτα Β’ ορόφου (Γ2), 105 τ.μ., στη Χαλέπα Χανίων. Σε μικρή σύγχρονη πολυκατοικία, φωτεινό ακίνητο υψηλών προδιαγραφών με πρόσβαση σε κοινόχρηστη πισίνα 15 τ.μ., ιδανικό για ιδιοκατοίκηση ή επένδυση. Στον Β’ όροφο διαθέτει ενιαίο χώρο σαλονιού–τραπεζαρίας–κουζίνας, 2 υπνοδωμάτια ,1 μπάνιο και στη σοφίτα 1 υπνοδομάτιο και 1 μπάνιο, ενώ περιλαμβάνει εσωτερική κλειστή θέση στάθμευσης και αποθήκη. Το ακίνητο ξεχωρίζει για τα ποιοτικά υλικά και τα σύγχρονα χαρακτηριστικά του: Κουφώματα αλουμινίου με διπλά ενεργειακά τζάμια, θερμομόνωση και ηχομόνωση. Πόρτα ασφαλείας. Δάπεδα από γρανιτοπλακίδια. Κουζίνα με ντουλάπια λάκας και πάγκο από μάρμαρο Καβάλας. Ηλιακός θερμοσίφωνας. Αυτόνομη θέρμανση/ψύξη με αντλία θερμότητας. Ενεργειακή κλάση Α+. Βρίσκεται σε προνομιακή τοποθεσία, μόλις 3,5 χλμ. από το κέντρο των Χανίων, με εύκολη πρόσβαση σε υποδομές, παραλίες και το αεροδρόμιο. Τιμή: €480.000. Παράδοση: Τέλος 2027 Κωδικός Ακινήτου: ΑΚ 4209 Μεσιτική Αμοιβή: 2% (+ΦΠΑ) Για περισσότερα ακίνητα επισκεφθείτε την ιστοσελίδα μας www.europacreteproperties.com
Χαρακτηριστικά
Τύπος
Διαμέρισμα | Πολυτελές ακίνητο
Συμβόλαιο
Πώληση
Όροφος
2 όροφος
Σύνολο ορόφων
2
Ανελκυστήρας
Ναι
Εμβαδόν
105 m²
Δωμάτια
4
Υπνοδωμάτια
3
Μπάνια
2
Επιπλωμένο
Όχι
Μπαλκόνι
Ναι
Θέρμανση
Κεντρική, αντλία θέρμανσης
Κλιματισμός
Αυτόνομη, κρύο/ζέστη
Άλλα χαρακτηριστικά
  • Διπλός υαλοπίνακας/ Κουφώματα αλουμινίου
  • Προσόψεως
  • Πόρτα ασφαλείας
  • Σοφίτα
  • Πισίνα
Πληροφορίες τιμής
Τιμή
€ 480.000
Τιμή ανά m²
4.571 €/m²
Ενεργειακή απόδοση

Κατανάλωση ενέργειας

A+

Ανακαλύψτε κάθε γωνιά του ακινήτου
+3
Πρόσθετες επιλογές

Επικοινώνησε με τον αγγελιοδότη

Ή