Loft G.SEFERI 118, 851 00 Rhodes, Χώρα, Ρόδος

€ 350.000
2
115 m²
2
ΙΣ
Ναι
Μπαλκόνι
Αποθήκη

Σημείωση

Τελευταία ενημέρωση: 15/04/2026
Περιγραφή

κωδικός: EK-11256299

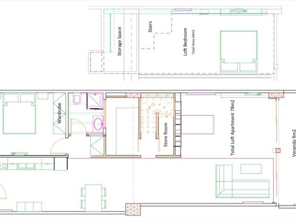
Πωλείται μια μοναδικής αρχιτεκτονικής ισόγεια σοφίτα, σε άριστη κατάσταση, μέσα σε ένα καλοδιατηρημένο συγκρότημα έξι κατοικιών κατασκευασμένη το 2013. Βρίσκεται σε μια ήσυχη τοποθεσία (αδιέξοδος δρόμος), σε ένα από τα πιο καλοδιατηρημένα προάστια της πόλης της Ρόδου, με ανεμπόδιστη θέα στη θάλασσα και τα βουνά. Ο χώρος ξεχωρίζει για τη μοντέρνα αρχιτεκτονική του, το φυσικό φως και την υψηλή αισθητική του. Περιλαμβάνει ένα ευρύχωρο σαλόνι-τραπεζαρία με μεγάλα παράθυρα, μια ανοιχτή κουζίνα, ένα υπνοδωμάτιο (+ άδεια για επιπλέον δωμάτιο, διατίθεται υπνοδωμάτιο), ένα μπάνιο, καθώς και ένα μπαλκόνι με υπέροχη θέα. Η κατοικία μπορεί να φιλοξενήσει έως 5 άτομα και διατίθεται σε άψογη κατάσταση. ✨ Χαρακτηριστικά – Εξοπλισμός Ενιαίος χώρος καθιστικού/τραπεζαρίας με ύψος οροφής 4 μ. Τετραπλά μονωμένα διπλά συρόμενα τζάμια 4,70 μ. & σίτες Μεγάλη βεράντα ~10 τ.μ. με απεριόριστη θέα Ανοιχτή κουζίνα Τζάκι αερίου Dru Global 100 BF Corner RCE, 7,1–7,5 kW Ηλιακός θερμοσίφωνας + εφεδρικός ηλεκτρικός λέβητας Κλιματισμός, συναγερμός, ζεστός λευκός φωτισμός LED Κοινόχρηστος κήπος με θέα στη θάλασσα Θέση στάθμευσης με ηλεκτρικό φορτιστή αυτοκινήτου Δυνατότητα αγοράς ποιοτικών επίπλων και οικοσυσκευών με επιπλέον κόστος Τοποθεσία Το loft βρίσκεται κοντά σε όλες τις ανέσεις της πόλης της Ρόδου: καταστήματα, φαρμακείο, καφετέριες, εστιατόρια και τράπεζες σε κοντινή απόσταση με τα πόδια. Η στάση του λεωφορείου απέχει μόλις 250 μέτρα, ενώ οι παραλίες είναι προσβάσιμες με τα πόδια ή με ποδήλατο σε περίπου 15 λεπτά. Η Ρόδος διαθέτει αναπτυσσόμενες υποδομές, νέα μαρίνα, ιδιωτική κλινική (EUROMEDICA), το Πανεπιστήμιο Αιγαίου και το διεθνές αεροδρόμιο «Διαγόρας» σε απόσταση μόλις 14 χλμ. Η περιοχή προσφέρει υψηλή ποιότητα ζωής και ασφάλεια, προσελκύοντας επενδυτές και κατοίκους όλο το χρόνο. Απόδοση Επένδυσης Το ακίνητο είναι ιδανικό τόσο για ιδιοκατοίκηση όσο και για τουριστική εκμετάλλευση. Ενοικίαση σε τουρίστες: 180 ημέρες x 150 € = 27.000 €/έτος Μακροχρόνια μίσθωση: 6 μήνες x 750 € = 4.500 €/έτος ➡ Συνολικό εισόδημα: ~31.500 €/έτος Με υπολογισμένο επιτόκιο δανείου 4,3%, τα έξοδα ανέρχονται σε περίπου 16.340 €/έτος, παρέχοντας καθαρό κέρδος ~15.000 €/έτος — μια επένδυση που αποσβένεται σε λίγα χρόνια. Εξαιρετική ευκαιρία για όσους αναζητούν μια ποιοτική κατοικία υψηλής αισθητικής, κοντά στη θάλασσα, με σταθερή απόδοση και επενδυτική αξία. Το ακίνητο είναι ιδιοκατοίκησης και διαθέσιμο κατόπιν ραντεβού. Για περισσότερες πληροφορίες, επικοινωνήστε μαζί μου τηλεφωνικά: +491707711167 (διαθέσιμα Viber και Whatsapp)
Χαρακτηριστικά
Τύπος
Loft | Πολυτελές ακίνητο
Συμβόλαιο
Πώληση
Όροφος
Ισόγειο
Ανελκυστήρας
Ναι
Εμβαδόν
115 m²
Δωμάτια
2
Υπνοδωμάτια
1
Μπάνια
2
Επιπλωμένο
Όχι
Μπαλκόνι
Ναι
Γκαράζ, χώροι στάθμευσης
1 εξωτερικό
Θέρμανση
Κεντρική, τροφοδοσία υγραέριο
Κλιματισμός
Αυτόνομη, κρύο/ζέστη
Άλλα χαρακτηριστικά
  • Πόρτα ασφαλείας
  • Συναγερμός
  • Τζάκι
Πληροφορίες τιμής
Τιμή
€ 350.000
Τιμή ανά m²
3.043 €/m²
Λεπτομέρειες κόστους
Κοινόχρηστα
Χωρίς κοινόχρηστα έξοδα
Ενεργειακή απόδοση

Κατανάλωση ενέργειας

A

Ανακαλύψτε κάθε γωνιά του ακινήτου
+12
Διαφημιστής
user male

Ιδιώτης

Πρόσθετες επιλογές

Επικοινώνησε με τον αγγελιοδότη

user male

Ιδιώτης